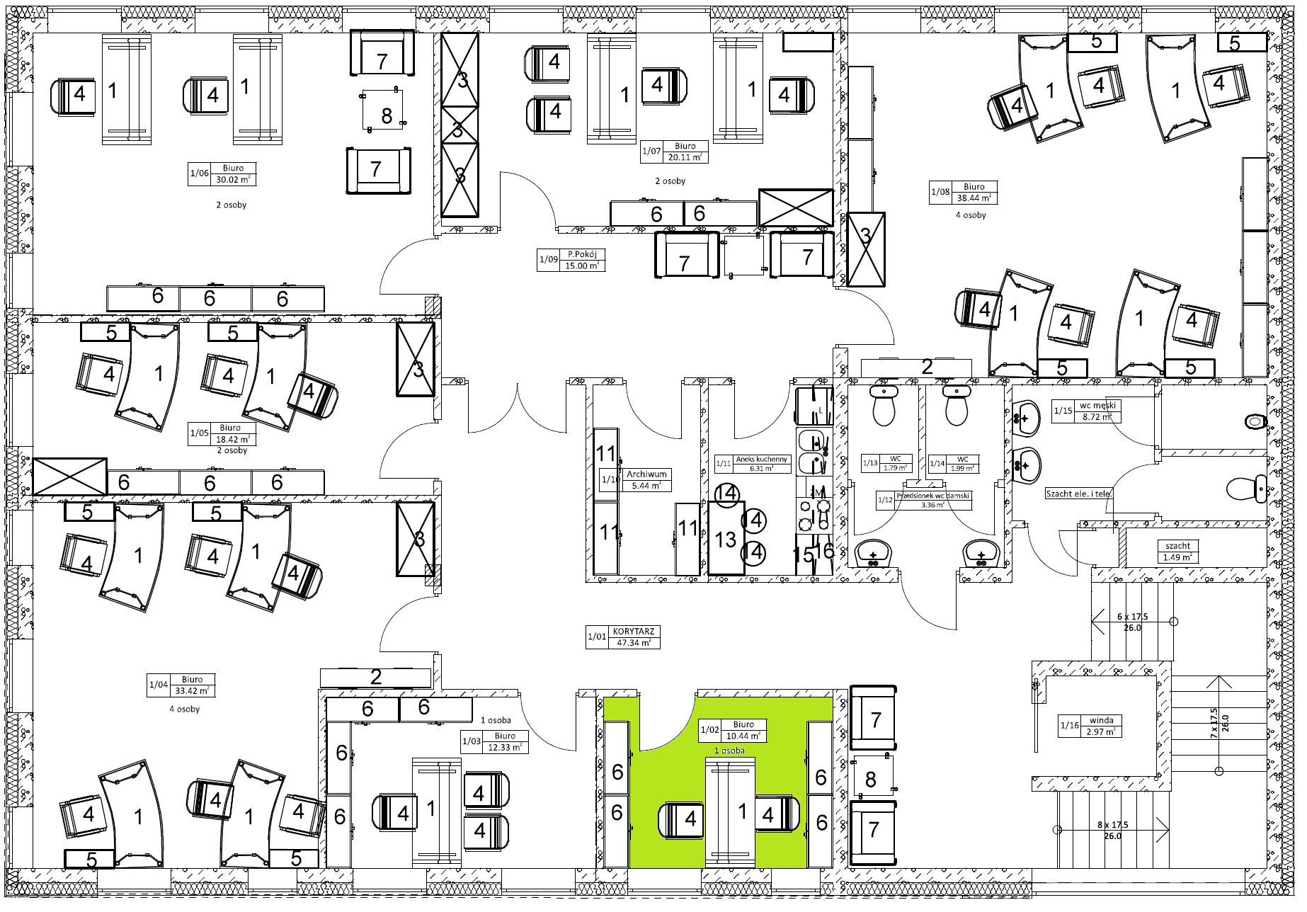
Biuro o powierzchni 10m2, położone na I piętrze

Możliwość skorzystania z windy.
Pomieszczenie ma indywidualną klimatyzację oraz światłowód Orange.

Czynsz: 850 zł netto. Kaucja wynosi tyle, co 2-miesięczny czynsz.

W powyższej kwocie zawarte są wszystkie opłaty eksploatacyjne:
- prąd
- ogrzewanie
- klimatyzacja
- sprzątanie części wspólnych
- dostęp do sali konferencyjnej.

 Parking bezpłatny.